Portfolio
Design
Art
Contact
Portfolio
Design
Art
Contact
Juneau Jung
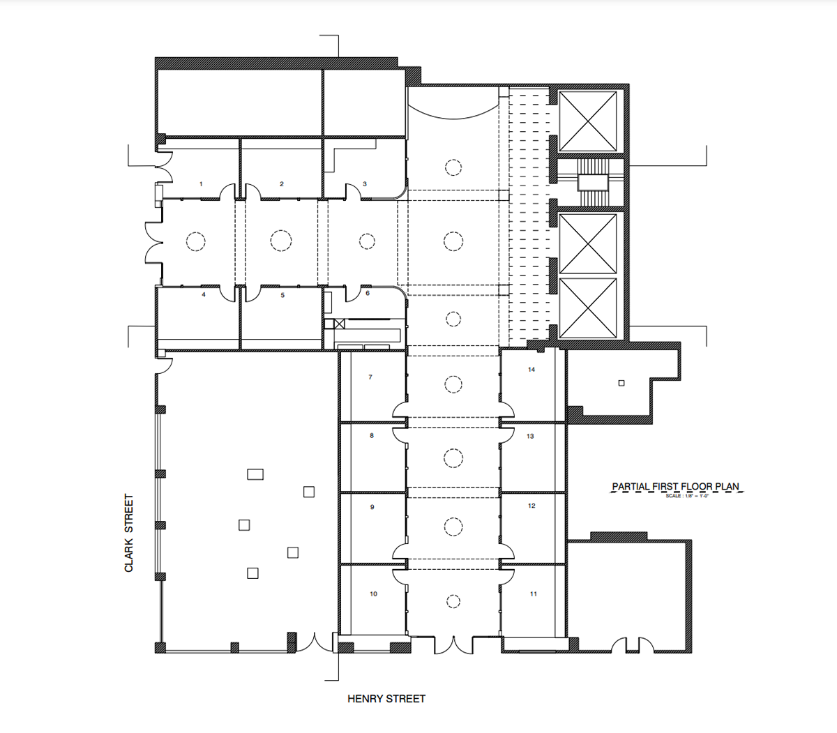
Clark St. Station Redesign
Retail Store Design: Individual Store and Spatial Design
You may also like
RE-GEN at Clark St.
2023
Product: Oyster Lounge
2024
Goong (궁)
2023
↑
Back to Top